Calle María de Molina
Lujo y diseño innovador en el barrio de Salamanca.
Características
Descripción
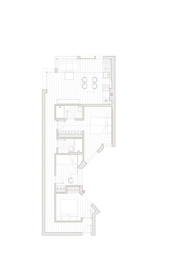
Exclusivo piso de lujo exterior de 105 m² ubicado en la calle María de Molina 62 , dentro del Barrio de Salamanca, a escasos metros del intercambiador de Avenida de América. La vivienda, situada en la octava y penúltima planta del edificio, ha sido objeto de una reforma integral.
Un pasillo distribuye la zona de noche, que consta de tres dormitorios: un dormitorio principal con vestidor y baño en suite, un dormitorio doble y un dormitorio individual. Estos dos últimos comparten un segundo baño independiente. Todos los dormitorios dan a un patio de manzana muy luminoso con orientación sur.
La zona social, orientada al exterior (calle María de Molina) , es un espacio abierto y luminoso con amplios ventanales de suelo a techo. Incluye una innovadora cocina abierta diseñada para ocultarse, simulando ser parte del mobiliario, con placas de cocción y fregadero invisibles, y electrodomésticos Bosch ocultos. Las calidades incluyen aire acondicionado por conductos, calefacción central y ventanas de doble acristalamiento.

